
Amber 5 is the fifth and final phase of a thoughtfully planned freehold land enclave in Bandar Baru Bukit Sentosa, Rawang, developed by Leo Vista Sdn. Bhd. Spanning 18.2 acres** and comprising 305 units across five phases, the Amber series offers a wholesome, family-focused environment surrounded by greenery, everyday conveniences, and strong connectivity to major transport routes.
With built-ups ranging from 1,480 sq ft to 1,713 sq ft, each home is designed for practicality and comfort, offering 4 bedrooms and 3 bathrooms ideal for young families, first-time homebuyers, and upgraders seeking value within a growing Rawang–Serendah corridor.
Project Details
Amber 5 is a freehold residential development consisting of 2-storey terrace homes, planned across five phases:
- Phase 1 – Amber 1: 67 units
- Phase 2 – Amber 2: 79 units
- Phase 3 – Amber 3: 67 units
- Phase 4 – Amber 4: 43 units
- Phase 5 – Amber 5: 49 units
In total, 305 units occupy the 18.2-acre site, with lot sizes of 20' × 65' or 18' × 65', and built-up sizes between 1,480 – 1,713 sq ft.
Homes come with 4 bedrooms and 3 bathrooms, emphasizing function, space efficiency, and a cozy lifestyle.
Indicative pricing starts from RM521,000, positioning Amber as an accessible entry point into freehold landed living.
Location & Connectivity
Amber 5 enjoys a strategic placement within Bandar Baru Bukit Sentosa, benefitting from a range of transport options:
- PLUS Highway (Bukit Beruntung Interchange) – Primary access point
- 14 km to Rawang KTM Station
- Free bus services to Kuala Kubu Bharu KTM Station
- Bukit Sentosa Terminal providing bus and taxi services
Residents enjoy the advantage of living in a township surrounded by ample green pockets, while still accessing nearby town centres like Rawang, Serendah, and Bukit Beruntung.
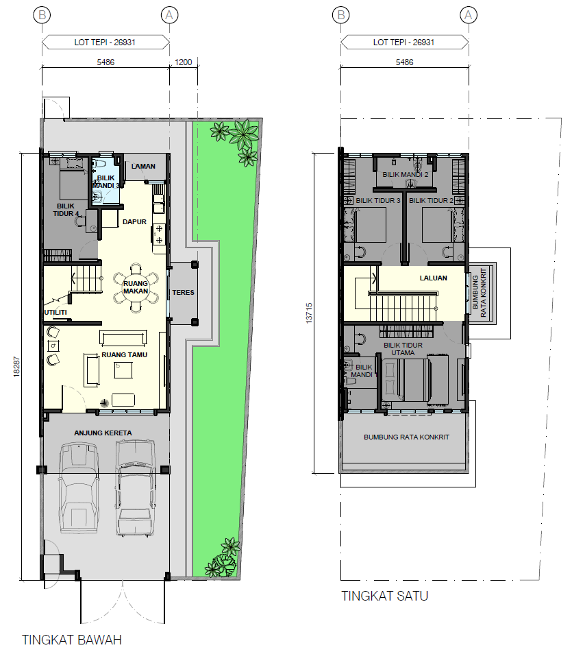
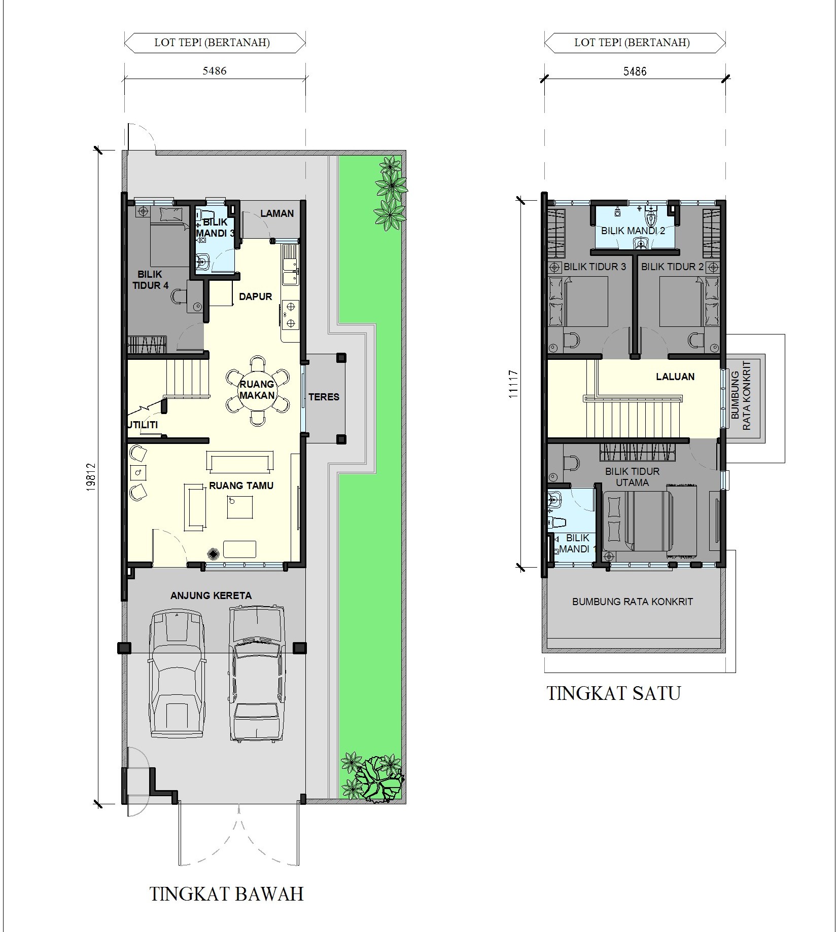
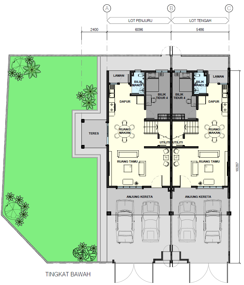
Layouts & Unit Types
Amber 5 offers three main layout variations:
Corner Unit
- 20′ × 65′
- 1,713 sq ft
- 4 Bedrooms, 3 Bathrooms
End Lot with Extra Land
- 18′ × 60′
- 1,515 sq ft
- 4 Bedrooms, 3 Bathrooms
Intermediate Unit
- 18′ × 65′
- 1,480 sq ft
- 4 Bedrooms, 3 Bathrooms
Each home is designed for functional, comfortable everyday living—balancing spacious bedrooms, practical layouts, and well-defined living zones.
Market Insights
Located within the growing Rawang–Serendah belt, Amber 5 is positioned as a value-driven freehold land option in a corridor that continues to attract first-time buyers and young families. With starting prices from RM521,000 and built-up sizes ranging from 1,480 – 1,713 sq ft.
This places Amber 5 competitively within the Bukit Sentosa–Serendah landed market, where accessibility via the PLUS Highway, improving township amenities, and proximity to KTM stations strengthen long-term appeal. The township’s low-density layout across five phases, coupled with consistent 4-bedroom configurations, further enhances its suitability for growing households seeking affordability, freehold tenure, and practicality in a suburban setting.
Summary
Amber 5 at Bukit Sentosa offers a practical and affordable entry into freehold landed living within the growing Rawang–Serendah corridor. Developed across a low-density 18.2-acre site, the final phase features 2-storey terrace homes with 4 bedrooms and 3 bathrooms, designed for comfortable family living. With prices starting from RM521,000 and built-ups between 1,480–1,713 sq ft, the project is competitively positioned for first-time buyers and young families seeking value. Strong accessibility via the PLUS Highway, proximity to KTM stations, and a maturing township ecosystem enhance Amber 5’s long-term appeal as a practical, family-focused landed development.
.jpg?KpT57Dw7Y_UzSKH8HsHP9pRQ_peOr_KV)