
Sfera Residence, Wangsa Maju, a contemporary residential development that brings together urban convenience and nature-inspired living. Designed as a timeless address, Sfera Residence offers a harmonious balance between city connectivity and tranquil green surroundings, creating a lifestyle that caters to both modern professionals and nature-loving homeowners.
Set within a GreenRE-certified development, Sfera Residence introduces a unique living experience in Wangsa Maju, highlighted by the area’s first sky roof link bridge and seamless integration with surrounding amenities. With panoramic views of Bukit Dinding, Klang Gates Quartz Ridge (Bukit Tabur), and the Kuala Lumpur skyline, the development elevates everyday living through both design and environment.
Project Overview
Development Name: Sfera Residence
Location: Wangsa Maju, Kuala Lumpur
Developer: Sunway Property (by MCL Land Malaysia Sdn. Bhd.)
Category: Apartment Suite
Tenure: Leasehold
Total Units: 494 units
Tower A: 233 units
Tower B: 261 units
Built-up Sizes: 541 sq ft – 997 sq ft
Unit Types: 1 to 3 bedrooms, dual-key, and villa concept units
Sfera Residence is designed as a low-density development, offering exclusivity and privacy with a limited number of units.
Location & Connectivity
Strategically located in Wangsa Maju, Sfera Residence enjoys excellent connectivity to Kuala Lumpur’s key destinations. Residents benefit from a covered linkway to Wangsa Walk Mall and are just a short walk (approximately 200m) to the Sri Rampai LRT Station on the Kelana Jaya Line.
Sri Rampai LRT Station (200m)
Wangsa Maju LRT Station (1.9 km)
Major highways within easy reach include:
- DUKE Highway
- MRR2
- AKLEH
- Karak Highway
- SUKE & upcoming SPE (Setiawangsa–Pantai Expressway)
These connections provide seamless accessibility to the city centre, KLCC, Bangsar South, and beyond, reinforcing the development’s appeal as a well-connected urban address.
Nearby Amenities
Shopping & Retail
Wangsa Walk Mall (50m)
Melawati Mall (2.7 km)
KL East Mall (5 km)
Education
Fairview International School (2.5 km)
TAR UMT (3.3 km)
Healthcare
Gleneagles Hospital KL (4.9 km)
Columbia Asia Hospital KL (5 km)
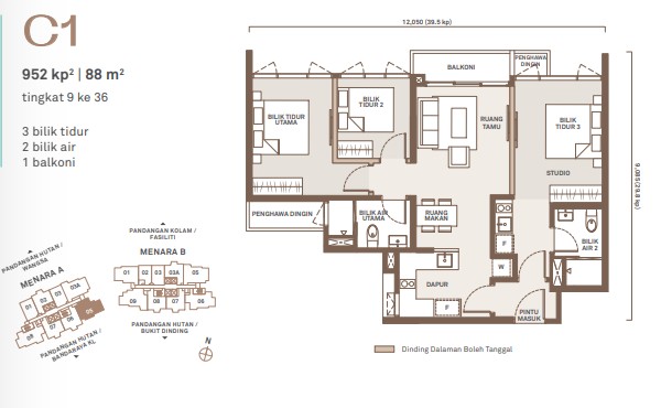
Unit Layouts
Sfera Residence offers a versatile range of layouts designed to cater to different lifestyles:
- Type A (541 sq ft) – 1 Bedroom, 1 Bathroom
- Type B (755 sq ft) – 2 Bedrooms, 2 Bathrooms
- Type C (952 – 997 sq ft) – 3 Bedrooms, 2 Bathrooms
Dual-key units – Ideal for flexible living or rental income
Villa concept units – Featuring private car park foyers
Each unit is semi-furnished and thoughtfully designed to maximise space, natural light, and privacy, while offering sweeping views of the surrounding greenery and city skyline.
Market Insights
Sfera Residence is positioned within the established Wangsa Maju residential market, to be steady due to its proximity to Kuala Lumpur city centre, mature infrastructure, and strong public transport connectivity. With indicative prices ranging from approximately RM497,800 to RM1.28 million, the development caters to a broad spectrum of buyers from young professionals and first-time homeowners to upgrade families seeking better lifestyle offerings.
The inclusion of dual-key layouts and villa concept units enhances its appeal to both owner-occupiers and investors, particularly those targeting rental demand from nearby universities, healthcare institutions, and city-based professionals. Additionally, its direct connectivity to LRT and retail amenities aligns with the growing preference for transit-oriented, lifestyle-integrated developments.
As a GreenRE-certified project with unique features such as the sky roof link bridge and low-density planning, Sfera Residence stands out within the Wangsa Maju market as a differentiated offering that balances modern living with nature-inspired design.
Summary
Sfera Residence redefines urban living in Wangsa Maju by seamlessly blending connectivity, nature, and modern design. With its low-density concept, panoramic views, and innovative features such as the sky roof link bridge, the development offers a distinctive lifestyle within a mature and well-connected neighbourhood.
Residents can also enjoy exclusive villa units with private car porch foyers, adding a layer of exclusivity rarely found in high-rise developments.
Backed by strong accessibility, lifestyle conveniences, and thoughtfully designed homes, Sfera Residence presents a compelling opportunity for homeowners seeking a harmonious balance between vibrant city living and serene natural surroundings.
