
Laman Cherakah is a boutique residential enclave in Seksyen U15, Shah Alam, offering a limited collection of 21 landed terrace homes thoughtfully planned for families seeking comfort, greenery, and an accessible suburban lifestyle. Developed by Creative Variety Sdn. Bhd., this new launch comprises single- and double-storey terrace units, with completion targeted for 2027.
Grounded in the developer’s vision of prioritising family, wellbeing, and nurturing spaces, Laman Cherakah is crafted as a calm, homely environment enhanced by open green areas and a close-knit community setting. With prices for the 1-storey homes starting from RM409,580, the project positions itself as an affordable yet comfortable option for buyers seeking practical landed living within the Shah Alam–Setia Alam–Puncak Alam corridor.
Project Details
Laman Cherakah is a leasehold, open-title residential development featuring a low-density mix of 1- and 2-storey terrace homes:
Total Units: 21
- 1-Storey Terrace: 8 units
- 2-Storey Terrace: 13 units
- Estimated Completion: 2027
- Location: Laman Cherakah, Seksyen U15, Shah Alam
Each home is designed to emphasise comfort and everyday practicality, echoing the developer’s belief in affordable, beautiful homes built for real family life.
Unit Types & Specifications
1-Storey Terrace
- Land Size: 20' × 80'
- Built-up: 1,101 sq ft
- Bedrooms: 4
- Bathrooms: 2
- Price: From RM409,580
Additional Details:
- Built-up price: RM372/sqft
- Land area: 1,600 sqft (RM255/sqft)
- Furnishing: Unfurnished
- Tenure: Leasehold
- Car Park: 1
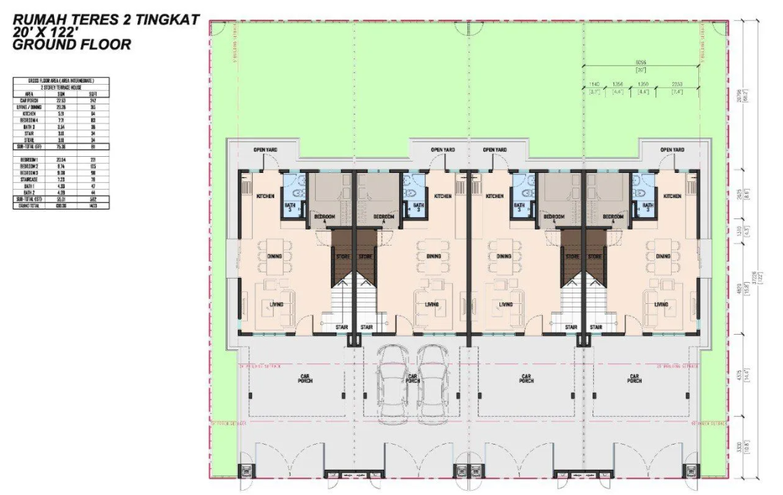
2-Storey Terrace
- Land Size: 20' × 122'
- Built-up: 1,403 sq ft
- Bedrooms: 4
- Bathrooms: 3
- Price: From RM487,380
Location & Connectivity
Residents enjoy seamless connectivity to key routes linking Shah Alam, Setia Alam, Klang, and Puncak Alam:
- Persiaran Setia Alam
- NKVE Expressway
- Federal Highway
- LATAR Highway
These major arteries support convenient daily commuting while placing Laman Cherakah within reach of established townships and employment hubs.
Nearby Amenities
Set within the maturing Shah Alam North region, Laman Cherakah offers residents access to a broad range of educational, commercial, and recreational conveniences:
Schools & Institutions
- SRA Bukit Cherakah
- SK Bukit Kapar
- UiTM Puncak Alam
Shopping & Commercial Hubs
- Setia City Mall
- Eco Ardence Commercial Hub
Healthcare
- Columbia Asia Hospital Klang
- Hospital Shah Alam
Recreation
- Setia Alam Central Park
Market Insights
Laman Cherakah distinguishes itself through its exclusivity only 21 units in total—paired with functional 4-bedroom layouts across both single- and double-storey options. Its price points beginning from RM409,580 for 1-storey homes and RM487,380 for 2-storey units place the project attractively within the Shah Alam–Setia Alam peripheral market, where demand remains steady among young families seeking landed, affordable options.
The combination of low-density planning, strong connectivity to major expressways, and proximity to established amenities enhances its long-term appeal as a practical, family-first choice within Seksyen U15.
Summary
Laman Cherakah in Seksyen U15, Shah Alam, presents a limited and thoughtfully crafted collection of 21 terrace homes designed around comfort, affordability, and family-centric living. Offering both 1- and 2-storey configurations with 4 bedrooms each, built-ups ranging from 1,101 to 1,403 sq ft, and prices starting from RM409,580, the development stands as an accessible entry into landed living within the thriving Shah Alam–Setia Alam–Puncak Alam region. With completion slated for 2027 and excellent access via NKVE, Federal Highway, LATAR, and Persiaran Setia Alam, Laman Cherakah offers a balanced blend of tranquillity, convenience, and long-term value.
.jpg?KpT57Dw7Y_UzSKH8HsHP9pRQ_peOr_KV)