
Residensi Kirana is a contemporary residential development designed to celebrate elegance, comfort, and balanced urban living. Located within the vibrant Kajang–Bangi corridor and within walking distance to KTM UKM. This freehold condominium offers a serene sanctuary amid city connectivity. With thoughtfully planned spaces, lush landscaping, and comprehensive lifestyle facilities, Residensi Kirana welcomes residents home to calm, convenience, and modern refinement.
Each home is crafted to support everyday comfort, featuring practical layouts, stylish interiors, and a harmonious connection between indoor living and outdoor greenery. Here, every return home is greeted with tranquility.
Development Overview
- Developer: Astana Asas (M) Sdn Bhd (A member of TLS Group)
- Total Units: 796 Units
- Block A: 440 units (34-storey)
- Block B: 356 units (35-storey)
- Estimated Completion: July 2028
- Property Type: Condominium / Apartment
- Prince starts from RM435,000 onwards
Location & Connectivity
Strategically positioned in Kajang, Residensi Kirana enjoys excellent accessibility to major roads, highways, and public transportation, making daily commuting seamless:
- Walking distance to KTM UKM
- Easy access to Kajang, Bangi, Cheras, Putrajaya, and Kuala Lumpur
- Connected via SILK Highway, Jalan Bangi, Jalan Cheras, and surrounding arterial roads
- Close to educational hubs including Universiti Kebangsaan Malaysia (UKM)
This prime location blends urban convenience with a peaceful residential environment, ideal for professionals, families, and commuters.
Nearby Amenities
Education
- Universiti Kebangsaan Malaysia (UKM)
- German Malaysian Institute (GMI)
- Nearby schools and kindergartens
Healthcare
- Hospital Kajang
- KPJ Kajang Specialist Hospital
- Hospital Pakar An-Nur
Shopping & Lifestyle
- Bangi Wonderland
- CS Bangi Avenue
- Lotus’s Kajang
- Giant Prima Saujana
Restaurants, cafés, and daily conveniences within Kajang & Bangi townships
Layouts & Key Features
Residensi Kirana is designed with functionality and modern living in mind, offering comfortable layouts suited for family living or investment purposes.
- Built-up Area: 1,000 sq.ft
- Configuration: 3 Bedrooms & 2 Bathrooms
- Unit Types: Type A & Type A1
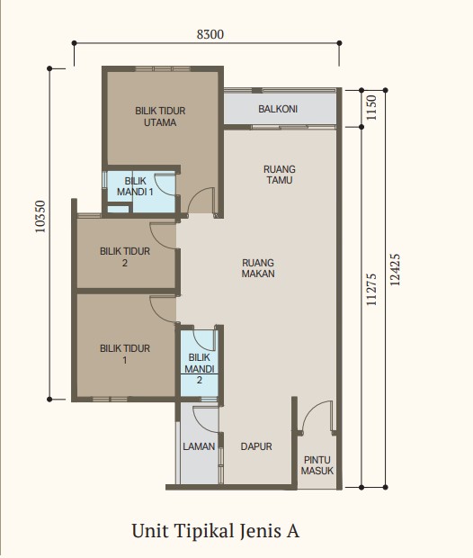
- Typical Layout Size: 8,300 mm x 12,425 mm
- Car Parks: 2 per unit
- Tenure: Freehold
Each unit features well-defined living and dining areas, practical kitchen spaces, and private balconies that invite natural light and ventilation.
Facilities & Lifestyle
Residents enjoy a thoughtfully curated suite of facilities that support wellness, recreation, and community living:
- Swimming pool & children’s wading pool
- Pool deck with loungers & outdoor shower
- Jogging track & pedestrian walkways
- Gymnasium & outdoor fitness area
- Multi-purpose hall
- Skate park & half basketball court
- Sepak takraw court
- BBQ corners, cabanas & gazebos
- Children’s playground & kindergarten
- Games room, reading room & laundry
- Male & female surau
- Landscaped gardens & perimeter planting
- Residential lobby & welcoming entrance statement
These spaces are designed to enrich daily life, encouraging relaxation, activity, and meaningful connections.
Floor Plans
Type A
- 1,000 sq.ft
- 3 Bedrooms | 2 Bathrooms
Type A1
- 1,000 sq.ft
- 3 Bedrooms | 2 Bathrooms
Both layouts prioritize space efficiency, comfort, and modern practicality.
Market Insight
Residensi Kirana stands out as a well-positioned urban condominium in the Kajang–Bangi growth corridor. With freehold tenure, direct access to KTM UKM, and a comprehensive range of lifestyle facilities, it appeals strongly to first-time homebuyers, young families, and investors seeking long-term value.
The 1,000 sq.ft layout with three bedrooms offers excellent space efficiency compared to surrounding developments, while the proximity to universities, healthcare facilities, and transportation hubs strengthens rental and capital appreciation potential.
Summary
Residensi Kirana offers a refined blend of elegance, comfort, and contemporary living. Designed as a peaceful retreat within a connected urban setting, it delivers practical layouts, lush communal spaces, and lifestyle-driven facilities that support modern living. Whether for own stay or investment, Residensi Kirana is a welcoming address where tranquility meets convenience, and every homecoming feels complete.
