
Project Overview
Arina introduces the first single-storey linked homes in the established township of Bandar Ainsdale, offering a freehold 20' x 70' layout thoughtfully crafted for long-term comfort and practicality. Designed with flexibility in mind, these homes feature open-plan spaces ranging from 1,010 to 1,138 sq ft, allowing families to personalise the interior according to their lifestyle—whether that means creating a cosy family hall, a multifunctional dining area, or a more seamless indoor-outdoor flow through the backyard garden.
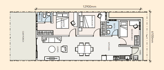
Each unit comes with 3 bedrooms and 2 bathrooms, making it an ideal choice for growing families, first-time homebuyers, or downsizers seeking the convenience of single-level living. The layout emphasizes natural lighting, ventilation, and accessibility, ensuring that everyday living remains comfortable and functional. With its strategic location in Seremban and its community-oriented design, Arina aims to offer residents a balanced, wholesome living environment.
A Home Designed for Every Chapter
Arina is crafted with the intention of supporting residents through the different stages of life. From new parents who appreciate the safety and simplicity of a single-storey layout, to retirees who want ease of mobility without stairs, the homes offer a lifetime-friendly design. Open-plan living areas provide flexibility for evolving needs, while well-placed windows create bright, airy interiors that enhance comfort and reduce energy usage.
The neighbourhood is designed to foster a warm community atmosphere, with close proximity to parks, lakes, and green spaces that encourage outdoor recreation and neighbourly interaction. Whether it’s family gatherings, peaceful evening walks, or active play for children, Arina provides the right setting for a well-balanced lifestyle.
Township Lifestyle at Bandar Ainsdale
Bandar Ainsdale emphasises wellness, nature, and community living. Its masterplan integrates generous green spaces, recreational lakes, and eco-friendly pathways, creating a peaceful township environment surrounded by scenic landscapes.
Township Highlights
Four lakes & community parks within the township
- Ainsdale Lake Park (11 acres)
- Tasik Abadi
- Tasik Segar
- Tasik Citra
- 20km of jogging & cycling paths connecting neighbourhoods
- A community-oriented layout that promotes wellbeing and active living
- A serene environment away from congestion yet close to essential amenities
Residents can enjoy a harmonious lifestyle that blends nature, convenience, and community interaction all elements that support healthier, more fulfilling everyday living.
Location & Connectivity
Arina benefits from a prime position within the growing Seremban corridor, providing quick access to major destinations while maintaining a relaxed suburban atmosphere.
Major Connections
- 7km to Seremban Town Centre
- Direct access to the North–South Expressway via Bandar Ainsdale Interchange (Exit 217)
- Easily connected to **Kuala Lumpur, Putrajaya & Melaka**
- Sg Besi Toll – 45km
- KLIA – 35km
- Seremban – 7km
- Port Dickson – 30km
Public Transport
- KTM Tiroi – 5km
- KTM Seremban – 9km
- Terminal One – 8km
Nearby Amenities
Healthcare
- KPJ Specialist Seremban Hospital – 6km
- Columbia Asia Medical Centre – 6km
- Hospital Tunku Jaafar – 11km
Education
- Sekolah Menengah Sri Pelangi – 400m
- SJK (C) Ladang Hillside – 3km
- Zenith International School – 6km
- SJK (C) Tung Hua S2 Heights – 7km
- Universiti Teknologi MARA – 14km
Retail & Daily Convenience
- Seremban Gateway – 5km
- Lotus’s – 6km
- Palm Mall – 7km
- AEON – 9km
- Mydin – 9km
Unit Details
- Freehold single-storey linked homes
- Land size: 20' x 70'
- Built-up: 1,010 – 1,138 sq ft
- 3 bedrooms, 2 bathrooms
- Open-plan layout with good ventilation
- Backyard garden space
- Type A/Am (Intermediate): 1,010 sq ft
Market Insights
Arina stands out as a rare single-storey freehold offering within a modern, well-planned township—an increasingly limited product type in today’s market. With a built-up of just over 1,000 sq ft and a focus on practical, flexible living, it appeals strongly to young families entering the property market, as well as older homeowners who want a comfortable, staircase-free home for the long term.
Its location within Bandar Ainsdale adds significant lifestyle value, supported by 11 acres of lake parkland, 20km of recreational pathways, and a growing ecosystem of amenities that enhances quality of life. Connectivity to Seremban and major expressways positions Arina as an attractive choice for those who commute between Klang Valley and Negeri Sembilan.
Summary
Backed by more than 50 years of experience, Sime Darby Property is one of Malaysia’s most established and award-winning developers, known for creating well-planned, sustainable communities. With 25 townships nationwide and a strong emphasis on green spaces, quality construction and long-term community value, the developer continues to lead the industry in township planning and sustainability initiatives.
Its awards ranging from FIABCI World Gold achievements to People’s Choice recognitions reinforce Sime Darby Property’s commitment to excellence, innovation, and environmental responsibility.
